5 szt.-
Załączniki bezpieczeństwa
Załczniki do produktuZałączniki dotyczące bezpieczeństwa produktu zawierają informacje o opakowaniu produktu i mogą dostarczać kluczowych informacji dotyczących bezpieczeństwa konkretnego produktu
-
Informacje o producencie
Informacje o producencieInformacje dotyczące produktu obejmują adres i powiązane dane producenta produktu.Grohe
-
Osoba odpowiedzialna w UE
Osoba odpowiedzialna w UEPodmiot gospodarczy z siedzibą w UE zapewniający zgodność produktu z wymaganymi przepisami.
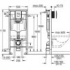
Grohe Rapid SL Stelaż podtynkowy 5w1 38827000
19 szt.
Grohe Rapid SL Stelaż podtynkowy 5w1 38827000
Opis produktu:
- spłuczka WC, z małym otworem rewizyjnym
- wysokość zabudowy 1,13 m
- do montażu przyściennego lub montażu w ścianie szkieletowej
- rama stalowa, powlekana proszkowo, samonośna
- do suchej zabudowy, kompletny montaż wstępny
- ustalone przyłącza do obiektu
- do montażu pojedynczego lub szynowego
- z szybką regulacją i blokadą wysokości
- materiał mocujący - 2 sworznie mocujące WC
- mocowanie ceramiki - rozstaw śrub 180/230 mm
- kolanko odpływowe z polietylenu DN 80
- regulacja głębokości zabudowy
- kształtka redukcyjna DN 80/100
- zestaw dopływowy i odpływowy
- spłuczka do WC, 6-9 l - ustawienie fabryczne 6l i 3l
- pneumatyczny zawór odpływowy z 3 funkcjami: 2-pojemn., start/stop lub bez przerywania
- przyłącze wodne z lewej/prawej lub od tyłu
- izolowana przeciwroszenioweo
- przyłącze wodne 1/2 cala z wbudowanym zaworem kątowym i przyłączem
- instalacja bez narzędziowa
- z akcesoriami do montażu przyściennego W skład zestawu wchodzi:
- przycisk Skate Cosmopolitan do uruchomienia 2-pojemnościowego lub start/strop - stelaż - spłuczka
5 szt.
1 szt.Omnires Y bateria wannowa wolnostojąca Y1233CR WYSYŁKA 24H
2 szt.